- Apr 22: EXTENDED to 22 Apr;Closure:30 Mar-22 Apr 2026; 07:30-17:00; Clearway Parking Zone; Hatchs Hill, Steamers Hill and Angarrack Lane (2 days)
- Apr 24: Mobile Library | Friday 24 Apr 2026 (4 days)
- May 22: Mobile Library | Friday 22 May 2026 (32 days)
- Jun 19: Mobile Library | Friday 19 Jun 2026 (60 days)
Articles
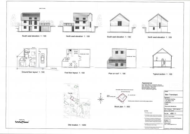
PA16/01169 | Construction of 2 storey dwelling and attached garage to replace previous approval PA14/12226 | 17A Back Lane Angar
Construction of 2 storey dwelling and attached garage to replace previous approval PA14/12226 - 17A Back Lane Angarrack Hayle Cornwall TR27 5JE
Ref. No: PA16/01169 | Received date: Fri 05 Feb 2016 | Status: Pending Consideration | Case Type: Planning Application read more »
Appeal Allowed | PA15/01953 | Construction of a pair of semi-detached dwellings - 12 Back Lane | Decision APP/D0840/W/15/3121461
Extract of permission - via http://docs.planning.cornwall.gov.uk/rpp/showimage.asp?j=PA15/01953&inde...
ANNEX TO APPEAL DECISION APP/D0840/W/15/3121461
Conditions:
1) The development hereby permitted shall begin not later than three years
from the date of this decision.
2) The development hereby permitted shall be carried out in accordance
with the following approved plans: Proposed Floor Plans 386/2; and
Mixed – site location and elevations 386/3. read more »
PA15/10626 | Approved with conditions Proposed new dwelling (redesign & positioning of Planning Approval PA10/04077 & PA11/06433
Via http://planning.cornwall.gov.uk/online-applications/applicationDetails.d...
Proposed new dwelling (redesign and positioning of Planning Approval PA10/04077 and PA11/06433) - Land Adj To Number 16 Back Lane Angarrack Cornwall TR27 5JE
Ref. No: PA15/10626 | Received date: Wed 11 Nov 2015 | Status: Approved with conditions | Case Type: Planning Application read more »
PA15/10626 | Proposed new dwelling (redesign and positioning of Planning Approval PA10/04077 and PA11/06433) | Land Adj To Numbe
Via http://planning.cornwall.gov.uk/online-applications/applicationDetails.d...
Proposed new dwelling (redesign and positioning of Planning Approval PA10/04077 and PA11/06433) - Land Adj To Number 16 Back Lane Angarrack Cornwall TR27 5JE
Ref. No: PA15/10626 | Received date: Wed 11 Nov 2015 | Status: Pending Consideration | Case Type: Planning Application read more »
PA15/04762 | Non Material Amendment to PA11/10691(Construction of two dwellings) to include changing softwood painted double gla
PA15/01953 | Construction of a pair of semi-detached dwellings - 12 Back Lane Angarrack Hayle Cornwall TR27 5JE
PA13/03138/PREAPP | Erection of two dwellings - Mellanoweth House 17 Back Lane Angarrack Hayle Cornwall | Planning Application
PA12/07908 - Retention of single storey garage/workshop| 17A Back Lane Angarrack Hayle Cornwall TR27 5JE | Mr & Mrs B Rennard

