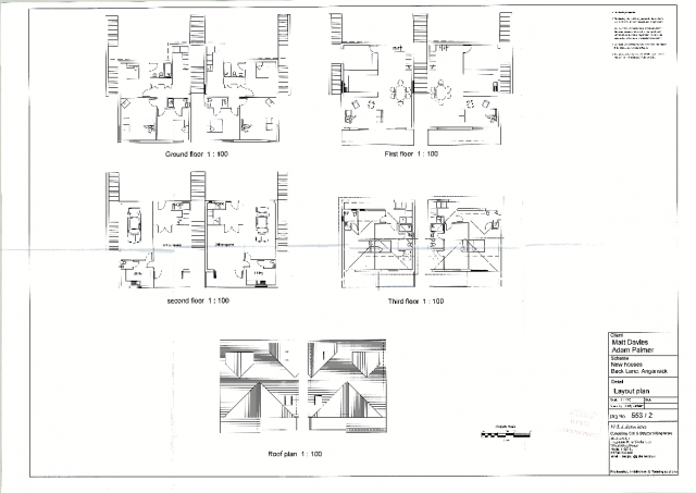
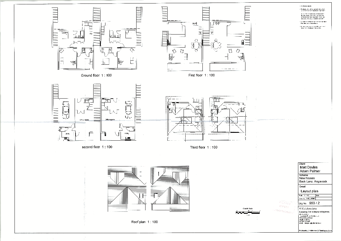
PA17/00288 | Application for removal of condition 2 in respect of Decision Notice PA15/01953 - 12 Back Lane Angarrack PA15/01953
Submitted by Angarrack.info ... on Wed, 18/01/2017 - 09:28.
Application for removal of condition 2 in respect of Decision Notice PA15/01953 - 12 Back Lane Angarrack Cornwall
Ref. No: PA17/00288 | Received date: Thu 12 Jan 2017 | Status: Pending Consideration | Case Type: Planning Application
The Applicants wish the dwellings to be detached
- Printer-friendly version
- Login or register to post comments
- Permalink
Contributions
- Angarrack Defibrillator Team (25)
- Angarrack Inn (336)
- Angarrack Methodist Chapel (3)
- Carol (15)
- Gail (1)
- GordonG (12)
- Hayle Development Group on Facebook (5)
- Hayle Harbour Authority (4)
- Hayle Town Council (5)
- louise (1)
- Lynne (111)
- Mal (1)
- MattBuckley66 (9)
- Neil (22)
- Neils Garden Care (9)
- Russell (21)
- Secretary - Christmas Lights (141)
- Steve (3)
- webmaster (5121)
Book page
Similar
- PA16/08443 | Erection of a detached garage | Land And Garage East Of 14 Back Lane Angarrack Cornwall TR27 5JE
- Submission of details to discharge condition 6 in respect of decision notice PA16/01169 - 17A Back Lane Angarrack H | PA16/01169
- Approved with conditions | PA16/01169 | Construction of 2 storey dwelling and attached garage to replace previous approval PA14/
- PA16/01169 | Construction of 2 storey dwelling and attached garage to replace previous approval PA14/12226 | 17A Back Lane Angar
- Appeal Allowed | PA15/01953 | Construction of a pair of semi-detached dwellings - 12 Back Lane | Decision APP/D0840/W/15/3121461
Similar across site
- PA17/00288 | Application for removal of condition 2 in respect of Decision Notice PA15/01953 - 12 Back Lane Angarrack PA15/01953
- PA16/08443 | Erection of a detached garage | Land And Garage East Of 14 Back Lane Angarrack Cornwall TR27 5JE
- Submission of details to discharge condition 6 in respect of decision notice PA16/01169 - 17A Back Lane Angarrack H | PA16/01169
- Approved with conditions | PA16/01169 | Construction of 2 storey dwelling and attached garage to replace previous approval PA14/
- PA16/01169 | Construction of 2 storey dwelling and attached garage to replace previous approval PA14/12226 | 17A Back Lane Angar








Recent comments
15 weeks 4 days ago
20 weeks 4 days ago
20 weeks 4 days ago
35 weeks 4 days ago
1 year 2 weeks ago
1 year 2 weeks ago
1 year 2 weeks ago
1 year 3 weeks ago
1 year 24 weeks ago
1 year 39 weeks ago