- Apr 22: EXTENDED to 22 Apr;Closure:30 Mar-22 Apr 2026; 07:30-17:00; Clearway Parking Zone; Hatchs Hill, Steamers Hill and Angarrack Lane (1 day)
- Apr 24: Mobile Library | Friday 24 Apr 2026 (4 days)
- May 22: Mobile Library | Friday 22 May 2026 (32 days)
- Jun 19: Mobile Library | Friday 19 Jun 2026 (60 days)
140206 | Presentation to Hayle Town Council | Walker Developments
Submitted by Angarrack.info ... on Fri, 07/02/2014 - 18:20.
Presentation to Hayle Town Council 7.15pm Thursday 06 February 2014 - original 5 PDF pages
Expansion to West Cornwall Retail Park
Welcome

Expansion to West Cornwall Retail Park
Redevelopment of Hayle Rugby Club

Memorial Park Proposed Retail Site
![]() |
New pedestrian cycle and foot paths to the South and North, leading through to Guildford Road.
80 Staff car parking spaces. 528 Customer car parking spaces. |
Expansion to West Cornwall Retail Park
Possible Amalgamation with West Cornwall Retail Park

![]() |
New pedestrian cycle and foot paths to the South and North leading through to Guildford Road.
Potential combined entrance with West Cornwall Retail Park. Signalising of Loggans Moor roundabout. |
Expansion to West Cornwall Retail Park
Scheme Benefits
-
Extension to the West Cornwall Retail Park rather than creating a seperate retail site.
-
100,000 sq ft of retail space.
-
Complementary uses such as café and coffee shops.
-
528 car parking spaces for the retail scheme plus 80 staff parking spaces.
-
Creation of up to 450 jobs.
-
Reduction in existing congestion with more well located car parking and linked trips with the existing retail park.
-
Creation of new pedestrian foot and cycle paths to improve connectivity to the North and South.
-
Cycle parking to complement improved cycle paths.
-
No increased impact upon Flood Zones within the area.
-
Creation of Landscape Habitats.
-
Improvements to existing Highway network, including diverting access from the existing development area and signalising of Loggans Moor roundabout.
Expansion to West Cornwall Retail Park
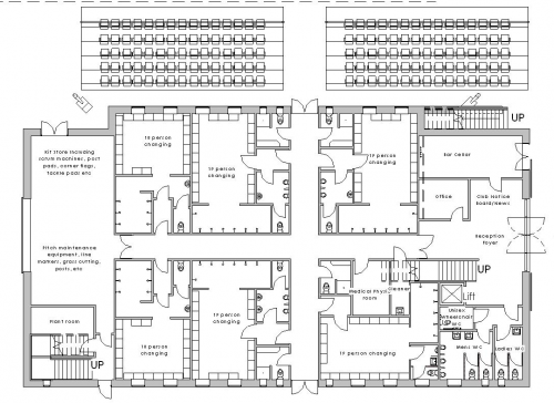
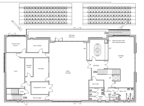
State of the Art Rugby Club
![]() |
![]() |
The New Clubhouse
![]() |
![]() |
-
12,000 sq ft State of the Art Rugby Club.
-
Two floodlit senior pitches plus junior/training pitches
-
Artificail Pitch - Enabling year round play.
-
120 car parking spaces.
-
Gymnasium and 6 changing rooms.
-
Two lounge bars and function rooms.
-
Significant Financial Support for the ongoing maintenance of HRFC.
-
New Community Facilities available to all Community Groups and other interested parties.
- Printer-friendly version
- Login or register to post comments
- Permalink
Contributions
- Angarrack Defibrillator Team (25)
- Angarrack Inn (336)
- Angarrack Methodist Chapel (3)
- Carol (15)
- Gail (1)
- GordonG (12)
- Hayle Development Group on Facebook (5)
- Hayle Harbour Authority (4)
- Hayle Town Council (5)
- louise (1)
- Lynne (111)
- Mal (1)
- MattBuckley66 (9)
- Neil (22)
- Neils Garden Care (9)
- Russell (21)
- Secretary - Christmas Lights (141)
- Steve (3)
- webmaster (5122)
Book page
tags in
Similar
- 160726 | Outline Planning Permission | Hayle Rugby Club | PA14/02920 | Outline application with some matters reserved
- 160726 | Section 106 | Hayle Rugby Club | PA14/02920 | Outline application with some matters reserved for proposed
- 160726 | Delegated report | Hayle Rugby Club | PA14/02920 | Outline application with some matters reserved for proposed
- 160727 | Approved with conditions | Hayle Rugby Club | PA14/02920 | Outline application with some matters reserved for proposed
- 160620 | Walker Developments website shows start date for the Hayle Rugby Club Retail Park as MAY 2017. This will be after the
Similar across site
- 160726 | Outline Planning Permission | Hayle Rugby Club | PA14/02920 | Outline application with some matters reserved
- 160726 | Section 106 | Hayle Rugby Club | PA14/02920 | Outline application with some matters reserved for proposed
- 160726 | Delegated report | Hayle Rugby Club | PA14/02920 | Outline application with some matters reserved for proposed
- 160727 | Approved with conditions | Hayle Rugby Club | PA14/02920 | Outline application with some matters reserved for proposed
- 160620 | Walker Developments website shows start date for the Hayle Rugby Club Retail Park as MAY 2017. This will be after the
Hayle and Angarrack news | Google
- Launceston's Colts beaten in thrilling final at Hayle - Cornish times
- Giant solar farm to be built across 22 fields in Cornwall after refusal overturned - Falmouth Packet
- Police chase dog walker carrying drugs worth £20K in a park in Cornwall - Cornwall Live
- The UK village with 'ghost' estate that's been abandoned for 10 years - Daily Express
- The UK village with 'ghost' estate that's been abandoned for 10 years - Daily Express
- The UK village with 'ghost' estate that's been abandoned for 10 years - Daily Express
- Empty estate shows a major housing crisis cause yet 'second homes blamed' - Cornwall Live
- Wetherspoon pub opens at Hayle holiday park - Cornwall Live
- Wetherspoon pub opens at Hayle holiday park - Cornwall Live
- Wetherspoon pub opens at Hayle holiday park - Cornwall Live
- Wetherspoon pub opens at Hayle holiday park - Cornwall Live
- Wetherspoon pub opens at Hayle holiday park - Cornwall Live
Problems within 7km of Hayle | FixMyStreet
Hayle News
- Please follow this link for the agenda:
- If you have any free events, classes or clubs taking place between 20th-26th April that we haven't mentioned, please feel free t...
- ???????????????????????????? ???????????????????????????????????? - ???????????????????????? ????????????????, ????????????????????????????????????
- This group is starting fortnightly on the 15th April between 1.15-3.15pm at the Hayle Family hub
- ???? Community Emergency Plan ????
- Launceston's Colts beaten in thrilling final at Hayle - Cornish times
- ???????????????? ????????????????????????, ???????????????? ???????????????????? ???????? ???????????? ???????????????????????????????? ???????????? ???????????? ????????????????????'???? ???????????????????????? ????????????????!
- A post from Hayle Town Council
Facebook - Hayle Town Council
- Please follow this link for the agenda:
- If you have any free events, classes or clubs taking place between 20th-26th April that we haven't mentioned, please feel free t...
- ???????????????????????????? ???????????????????????????????????? - ???????????????????????? ????????????????, ????????????????????????????????????
- This group is starting fortnightly on the 15th April between 1.15-3.15pm at the Hayle Family hub
- ???? Community Emergency Plan ????

















Recent comments
11 weeks 5 days ago
16 weeks 5 days ago
16 weeks 5 days ago
31 weeks 5 days ago
51 weeks 2 days ago
51 weeks 2 days ago
51 weeks 2 days ago
51 weeks 2 days ago
1 year 21 weeks ago
1 year 35 weeks ago